„Kleines Haus mit großem Potenzial– Doppelhaushälfte mit Garten in Schwentinental“

Heading
No items found.
Verkauft
Reserviert
Daten
Lage
Fotos
Finanzierung
Rundgang
Anfrage

Auf einen blick...

Kennung

Objektart

Zimmer

Wohnfläche

Nutzfläche

Grundstücksgröße

Heizungsart

Energiekennwert

Energieeffizienzklasse

2026-01-174

Doppelhaushälfte

3 Zimmer

ca. 61m²

361m²

Gasheizung

Energieausweis

Energieausweis gültig bis

Mieteinnahmen p.a.

Kaufpreis

Kaufpreis pro m²

Provision

Liegt zur Besichtigung vor

265.000,00€

3,57% inkl. gesetzl. MwSt.

„Kleines Haus mit großem Potenzial– Doppelhaushälfte mit Garten in Schwentinental“

Objektbeschreibung

Diese Doppelhaushälfte befindet sich in ruhiger Wohnlage von Schwentinental und bietet eine interessante Gelegenheit für Käufer, die ein kompaktes Eigenheim mit Entwicklungspotenzial suchen. Die Wohnfläche von ca. 63 m² verteilt sich auf das Erdgeschoss und das Dachgeschoss. Die Räume bieten eine überschaubare, funktionale Aufteilung und eignen sich insbesondere für Singles, Paare oder Käufer, die ein kleines Haus nach eigenen Vorstellungen gestalten möchten. Darüber hinaus stehen zusätzliche Nutzflächen zur Verfügung. Der Dachboden wurde bereits ausgebaut und kann beispielsweise als Hobbyraum, Arbeitsbereich oder zusätzliche Abstellfläche genutzt werden. Das Haus ist voll unterkellert. Im Kellergeschoss befinden sich neben den üblichen Nutz- und Abstellräumen auch das Badezimmer. Die Flächen im Keller sowie der ausgebaute Dachboden zählen nicht zur offiziellen Wohnfläche, bieten jedoch zusätzliche Nutzungsmöglichkeiten im Alltag. Besonders interessant ist das Entwicklungspotenzial der Immobilie. In der direkten Nachbarschaft wurden mehrere Häuser bereits rückwärtig erweitert, wodurch zusätzliche Wohnfläche geschaffen wurde. Eine ähnliche bauliche Erweiterung könnte – vorbehaltlich der erforderlichen Genehmigungen – ebenfalls eine attraktive Perspektive für diese Immobilie darstellen. Der Gartenbereich bietet Platz zum Entspannen im Freien und rundet das Angebot in angenehmer Wohnlage ab. Diese Immobilie eignet sich besonders für Käufer, die ein überschaubares Eigenheim mit Gestaltungsmöglichkeiten suchen und die Chance nutzen möchten, eine Immobilie nach eigenen Vorstellungen weiterzuentwickeln. Gerne unterstützen wir Sie auf Wunsch auch bei der Finanzierung dieser Immobilie und beraten Sie zu passenden Finanzierungsmöglichkeiten.

Ausstattungsmerkmale

- ca. 63 m² Wohnfläche (Erdgeschoss und Dachgeschoss) - ausgebauter Dachboden als zusätzliche Nutzfläche - voll unterkellert - zusätzliches Badezimmer im Kellergeschoss - Gartenbereich - Erweiterungs- bzw. Ausbaupotenzial - ruhige Wohnlage

Lagebeschreibung

Die Immobilie befindet sich in Schwentinental, einer beliebten Wohnstadt im Kreis Plön unmittelbar östlich der Landeshauptstadt Kiel. Durch die Nähe zur Stadt sowie die naturnahe Umgebung verbindet der Standort die Vorteile einer ruhigen Wohnlage mit einer gut entwickelten Infrastruktur. Schwentinental liegt nur wenige Kilometer von der Kieler Innenstadt entfernt und ist daher besonders attraktiv für Pendler sowie für Käufer, die die Nähe zur Landeshauptstadt schätzen. Über die Bundesstraßen B76 und B202 besteht eine gute Anbindung an das regionale Straßennetz. Zudem verfügt der Ortsteil Raisdorf über einen Bahnhof mit Regionalbahnanschluss in Richtung Kiel und Lübeck sowie eine gute Busanbindung. Die Stadt bietet eine sehr gute Infrastruktur mit vielfältigen Einkaufsmöglichkeiten, Schulen, Kindergärten, Ärzten und weiteren Einrichtungen des täglichen Bedarfs. Besonders bekannt ist das große Fachmarktzentrum in Raisdorf, das ein breites Angebot an Einzelhandel und Dienstleistungen bietet. Auch der Freizeitwert ist hoch: Die naturnahe Umgebung entlang der Schwentine, der Rosensee sowie zahlreiche Grünflächen laden zu Spaziergängen, Radtouren und weiteren Freizeitaktivitäten ein. Beliebte Ziele in der näheren Umgebung sind zudem das Freibad Schwentinental sowie das Tiergehege Raisdorf, die sowohl bei Familien als auch bei Spaziergängern sehr geschätzt werden. Insgesamt verbindet Schwentinental eine ruhige, gewachsene Wohnstruktur mit guter Infrastruktur, hohem Freizeitwert und der unmittelbaren Nähe zur Landeshauptstadt Kiel und zählt damit zu den gefragten Wohnlagen im Kieler Umland.

Galerie

No items found.

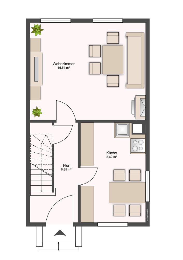
Grundriss

Klicken um zu öffnen!

No items found.

BEISPIELRECHNUNGEN ZUR FINANZIERUNG

/ Monat

Anfrage starten

/ Monat

Anfrage starten